空き家情報(東1条北2丁目4番地14)
| 売買又は賃貸の別 | □売却したい ■貸したい | ||
|---|---|---|---|
| 建物の所在地 | 中札内村東1条北2丁目4番地14 | ||
| 希望価格 | 65,000円/月 | ||
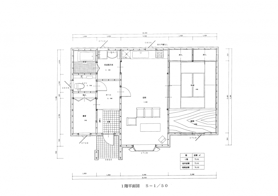
| 建物の状況 | 構造 | 木造 | |
| 規模 | 平屋建 | ||
| 延床面積 | 73.61平方m(22.26坪) | ||
| 建築年月 | 平成13年(築23年) | ||
| 設備の状況 | 飲用水 | 使用可(上水道) | |
| 下水道 | 有 | ||
| トイレ | 水洗(洋式) | ||
| 電気 | 使用可 | ||
| 駐車場 | 有(ガレージ2台分) | ||
| 土地の状況 | 敷地面積 | 489.99平方m(148.22坪) | |
| 特記事項 | なし | ||
| 添付書類 | 住宅の平面図・写真 | ||
| 連絡先 | 中札内村施設課施設グループ TEL:0155-67-2496 | ||